blog

『FPの家 M邸』の工事写真をご覧ください。
樹脂サッシと無垢の窓枠を撮ってみました。
サッシのフレームと窓枠の間に白い樹脂が見えるでしょ?
これ、写真のようなアングル材なんです。
現場で長さを切り詰めてサッシフレームにビス留めしています。
そこに窓枠の先端を挿し込み、アングルに明いた穴からビスを留めれば完了となります。
以前は、サッシフレームに窓枠を突付けていました。
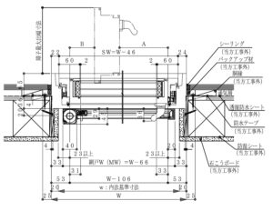
エクセルシャノンの納まり図です。
以前のサッシは、図のように窓枠用のアングルは用意されていませんでした。
納まり図を見ると、そもそも窓枠を取付ける仕様にはなっていないようです。
図では石膏ボードを突付けていますが、弊社では窓枠を突付けていた訳です。
でも入居後にフレームと窓枠の間に隙間が出来る事があります。
そこで樹脂アングルを固定し、そこに窓枠を挿し込むようにした訳です。
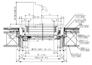
でも数年前に、アングル付サッシが発売となりました。
でもエクセルシャノン用の窓枠に合わせた形状をしていた為、弊社の仕様には合いません。
ちなみにエクセルシャノン用の窓枠は、シート貼り品のため、採用する積りもありませんでした。
結局、別売りのアングルを購入して大工が加工・取付を続けています。
でも最近、アングル付サッシの納まり図を確認すると上図のようになっていました。
この納まりであれば、無垢の窓枠でも納まりそうです。
でも、もしかしたら窓枠先端にアングルしゃくりが必要になるかも?
こうなると、採用は見送りになります。
詳細を確認してみようと思います。
問題が無ければ、こちらのタイプに変更したいと思います。
メーカー担当者も気が利きませんよね?
弊社が余計な手間を掛けているのを知ってるくせに、仕様変更を知らせてくれないなんて・・・。
納まらないのがわかっていて、知らせなかったんなら良いんだけど。
問い詰めてみようかしら😅

posted by AssetRed
住所:東京都練馬区北町2-13-11
電話:03-3550-1311
東武東上線 東武練馬駅下車5分
ただいま、現場監督見習いを募集しています。
https://www.assetfor.co.jp/recruit/
上記をご確認ください。